
こんにちは。アイフルホーム鳥取店です。
今年の春に完成し移転した新事務所のすぐ隣で
着々と完成に向けて作業が進められている新モデルハウス。
この夏のオープンを目指して、現在も毎日職人さんたちが頑張ってくれています!
ここ数ヶ月は家づくりに関するイベントも盛りだくさんで
5月に上棟を行い、6月には構造見学会も開催しました。
▼5月30日「新モデルハウス 上棟しました」
https://yell-net.co.jp/section02/blog/modelhouse-joto/


上棟については当日にもブログでご報告しましたが
小雨が降るなかスタートし、大工さんたちが柱を組み上げていくうちに
いつの間にかきれいな青空が広がるという
なんとも幸先の良いスタート!

●モデルハウスのこだわりポイント
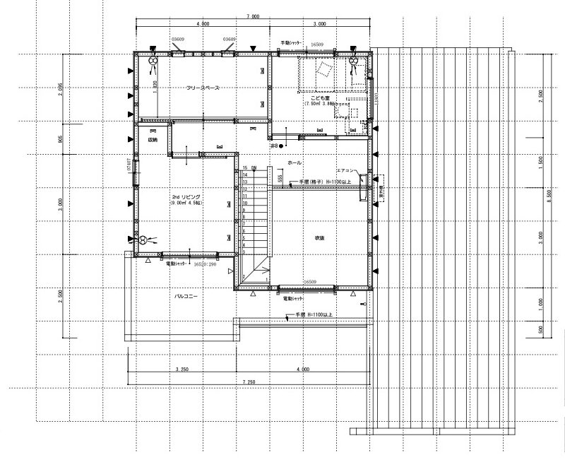
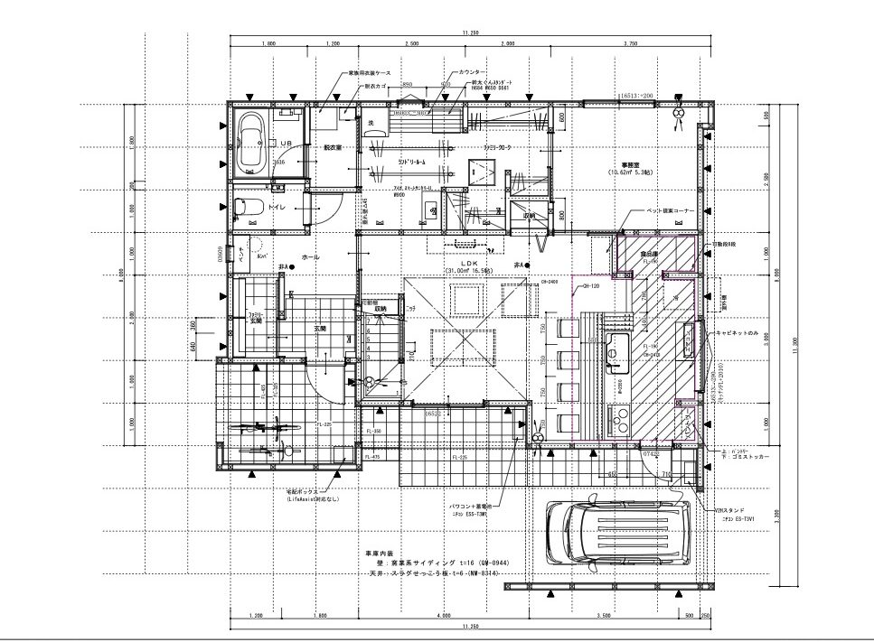
①あえてダイニングテーブルを置かないダイニング
家族のコミュニケーションの中心はキッチンと対面のカウンターテーブル。キッチンの床高さを少し下げる事で、料理している人と座っている人の目線が合うようにしました。
②脱衣↔ランドリールーム↔ファミクロが一直線
洗濯から収納までが1階で完結する動線は、家事の強い味方です!
完成後がイメージできる、立面図や平面図もチラ見せしちゃいますね^^

モデルハウスの完成後の9月にはオープン記念イベントも計画中です^^
日時や内容は決まり次第、HPやInstagramでお知らせしますので
ぜひともお誘い合わせのうえ、お越しください!
▼最新のイベント・キャンペーン情報はこちらから
https://yell-net.co.jp/section02/event/
▼Instagramでも最新情報を発信中!



